Tehnički list za Montini Bingo Zinc 175

Model 2011-2016 Europe EN

Ova podatkovna tablica (PDF) bit će poslana u vašu pristiglu poštu nakon što unesete svoju adresu e-pošte.

  • originalni tehnički list proizvođača
  • više informacija
  • detaljna specifikacija

*Uvjeti i odredbe

Primjenjuje se politika privatnosti tvrtke LECTURA GmbH, koja također sadrži dodatne informacije o mogućnostima ispravljanja, brisanja i blokiranja mojih podataka.

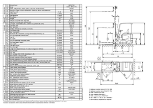
Električni viličari Montini Bingo Zinc 175



Pokazati detaljnu specifikaciju